ホーム ≫ 売買・仲介物件 ≫
売買・仲介物件
戸建て
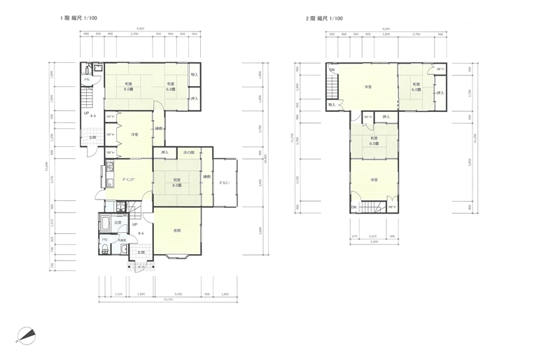
射水市太閤山3丁目 中古戸建
- 土地約88坪
- 太閤山小学校徒歩5分
- 閑静な住宅地
| 販売価格 | 万円 | ||
|---|---|---|---|
| 所在地 | 射水市太閤山3-23 | ||
| 交通 | |||
| 小学校 | 太閤山小学校 | 中学校 | 小杉中学校 |
| 土地面積 | 292.46㎡ | 延べ面積 | 173.94㎡ |
| 地目 | 宅地 | 地勢 | 平坦・高台 |
| 建物構造 | 木造 | 間取り | 7SDK |
| 建蔽率 | 60% | 容積率 | 100% |
| 接道状況 | 北西14m | 接道方向 | 北西 |
| 接道幅員 | 8m | 接道間口 | 14m |
| 用途地域 | 第一種低層住居専用地域 | 都市計画区域 | 市街化区域 |
| 取引形態 | 専任 | 土地権利 | 所有権 |
| 引渡時期 | 即時 | その他費用 | 仲介手数料 |
| 設備 | 電気・ガス・上下水道 | ||
| 周辺環境 | 閑静な住宅地 | ||
土地
射水市中太閤山7丁目
| 販売価格 | 売却済み | ||
|---|---|---|---|
| 所在地 | 射水市中太閤山7丁目 | ||
| 交通 | あいの風とやま鉄道小杉駅 | ||
| 小学校 | 中太閤山小学校 | 中学校 | 小杉南中学校 |
| 土地面積 | 272.79㎡ | 延べ面積 | - |
| 地目 | 宅地 | 地勢 | 平坦 |
| 建蔽率 | 50% | 容積率 | 80% |
| 接道状況 | 射水市道 | 接道方向 | 北・西 |
| 接道幅員 | 12m・6m | 接道間口 | 17m・15m |
| 用途地域 | 第1種低層住居専用地域 | 都市計画区域 | 市街化区域 |
| 取引形態 | 売主 | 土地権利 | 所有権 |
| 引渡時期 | 相談 | その他費用 | |
| 設備 | 電気・上水道・下水道・都市ガス | ||
| 周辺環境 | 中太閤山小学校徒歩6分 | ||
射水市南太閤山7丁目
| 販売価格 | 売却済み | ||
|---|---|---|---|
| 所在地 | 射水市南太閤山7丁目 | ||
| 交通 | あいの風とやま鉄道小杉駅 | ||
| 小学校 | 中太閤山小学校 | 中学校 | 小杉南中学校 |
| 土地面積 | 270.16㎡ | 延べ面積 | - |
| 地目 | 宅地 | 地勢 | 平坦 |
| 建蔽率 | 50% | 容積率 | 80% |
| 接道状況 | 射水市道 | 接道方向 | 東 |
| 接道幅員 | 6m | 接道間口 | 15m |
| 用途地域 | 第1種低層住居専用地域 | 都市計画区域 | 市街化区域 |
| 取引形態 | 売主 | 土地権利 | 所有権 |
| 引渡時期 | 相談 | その他費用 | |
| 設備 | 電気・上水道・下水道・都市ガス | ||
| 周辺環境 | 中太閤山小学校・小杉南中学校 | ||
マンション
準備中です。
















